Viseum Wetzlar
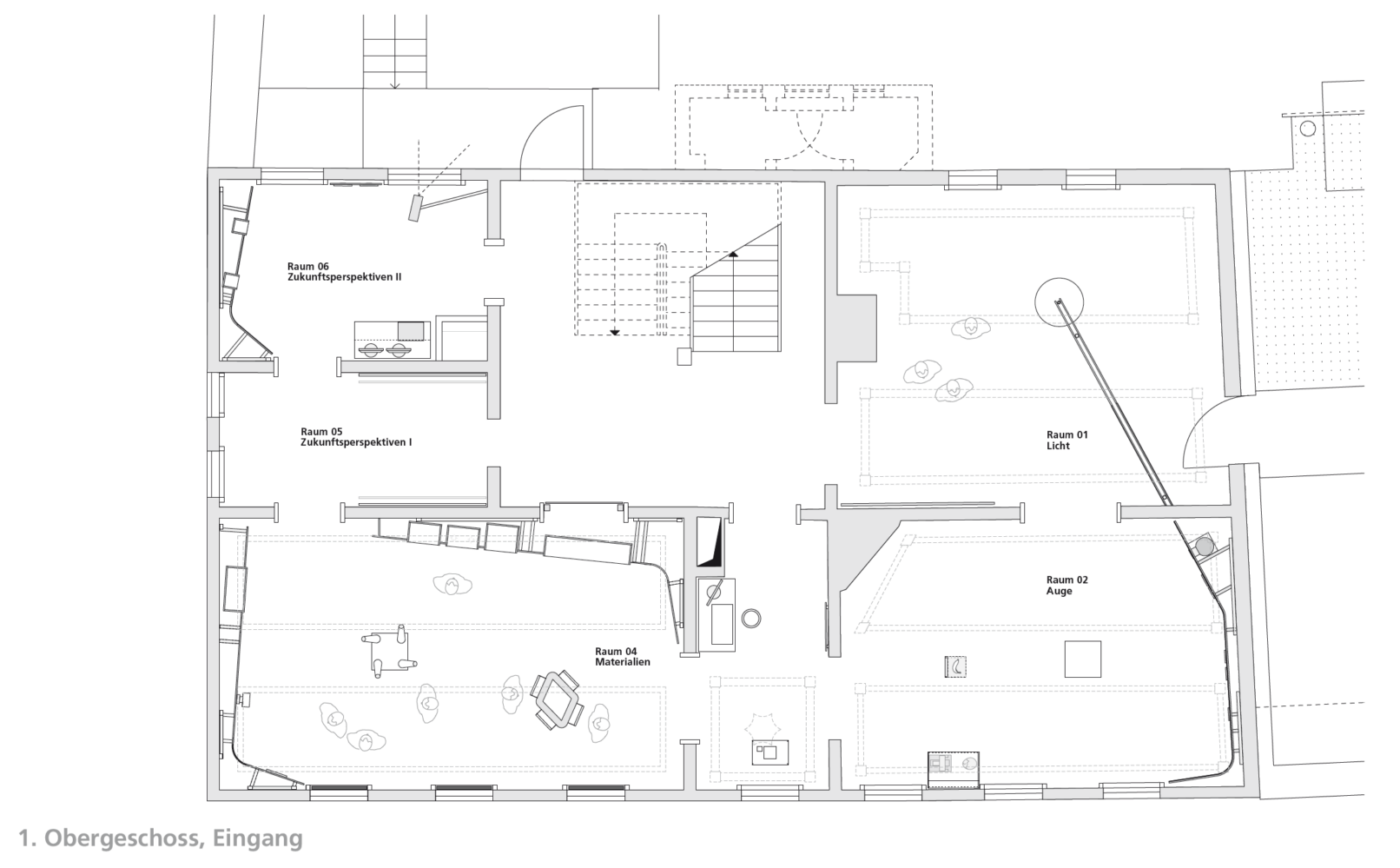
Der gebaute Lichtstrahl
2003 beschließen 14 Unternehmen aus dem Raum Wetzlar – darunter Leica, Leica Microsystems, Zeiss und Minox – den Technologiestandort durch ein innovatives Ausstellungsprojekt zu fördern.
Das allen beteiligten Firmen gemeinsame Element „Licht“ wird als Klammer des gemeinsamen Auftritts inszeniert. Der gebaute Lichtstrahl führt als Leitmotiv durch die gesamte Ausstellung.
Agentur: Generators-Communication GmbH, Frankfurt
What we did
- Konzept und Design
- Ausführungs- und Detailplanung
- Bauleitung










